Επισκόπηση
- Τελευταία Ενημέρωση
- 12 Ιανουαρίου, 2022
- 1 Υπνοδωμάτια
- 1 Μπάνια
- Έτος Κατασκευής / Ανακαίνισης: 2022
Γενική Παρουσίαση
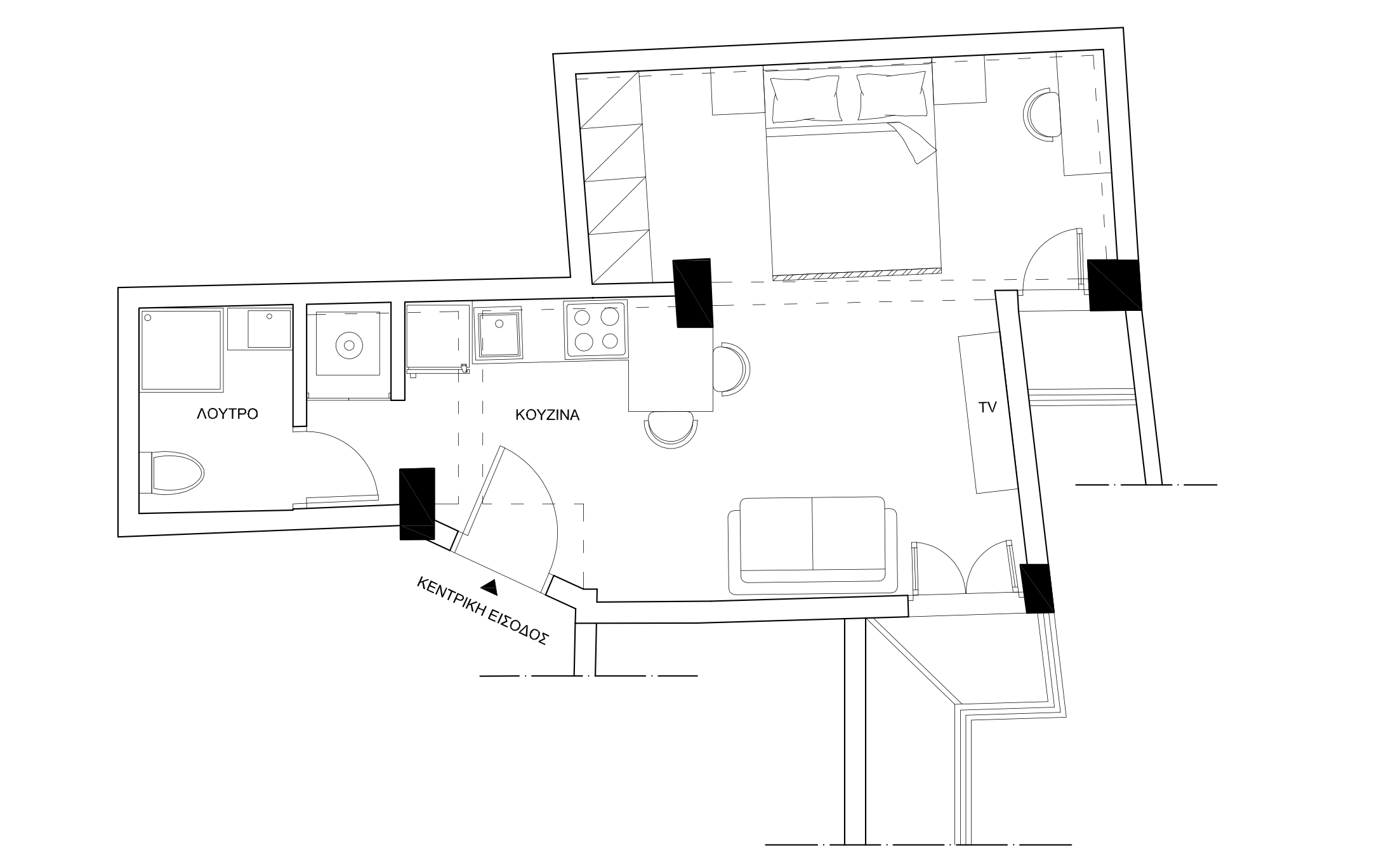
Το 40 τ.μ. ανώγειο διαμέρισμα βρίσκεται στο κέντρο της Θεσσαλονίκης σε εξαιρετικό και κομβικό σημείο. Ανακαινίζεται με σκοπό τη δημιουργία ενός πολυτελούς διαμερίσματος. Αποτελείται από σαλοκουζίνα, υπνοδωμάτιο και μπάνιο. Θα είναι πλήρως επιπλωμένο και εξοπλισμένο, με αυτόνομη θέρμανση φυσικού αερίου και κλιματιστικά σε κάθε χώρο. Τα παράθυρα θα έχουν ενεργειακά διπλά τζάμια.
Το 2022, το διαμέρισμα ανακαινίζεται πλήρως. Εγκατασταίνονται καινούριοι κεντρικοί σωλήνες ύδρευσης και αποχέτευσης και πραγματοποιείται σωστή ηλεκτρολογική εγκατάσταση.
Το διαμέρισμα απέχει 240 μέτρα από την θάλασσα, 2.900 μέτρα από την πιο κεντρική πλατεία – ορόσημο της πόλης, την πλατεία Αριστοτέλους, 2100 μέτρα από το Αριστοτέλειο Πανεπιστήμιο Θεσσαλονίκης, 1600 μέτρα από το Πανεπιστήμιο Μακεδονίας και 13.4 χλμ από το Διεθνή Κρατικό Αερολιμένα Θεσσαλονίκης «Μακεδονία».







